Xử lý nước thải cho trại heo tại Bình Định
- Ngày đăng: 30-07-2025
- Lượt xem: 469
Xử lý nước thải cho trại heo tại Bình Định.

Chúng tôi sẽ giúp được giúp cho bạn
- Xử lý đạt QCVN theo quy định.
- Giá thành hợp lý, dễ vận hành.
- Hỗ trợ vận hành và tiếp đón khi có đoàn kiễm tra.
- Phù hợp với không gian, diện tích doanh nghiệp của
Hãy liên hệ chúng tôi ngay hôm nay để được tư vấn hoàn toàn miễn phí
- Dịch vụ hỗ trợ khách hàng cuả chúng tôi:
- Bảo hành từ 12- 18 tháng và bảo trì vĩnh viễn.
- Tư vấn, thiết kế, chọn giải pháp công nghệ miễn phí.
- Hỗ trợ vận hành canh chỉnh khi có đoàn kiễm tra
Với đội ngũ kỹ sư có kinh nghiệm chúng tôi sẽ mang đến cho bạn một trải nghiệm tuyệt vời.
.png)
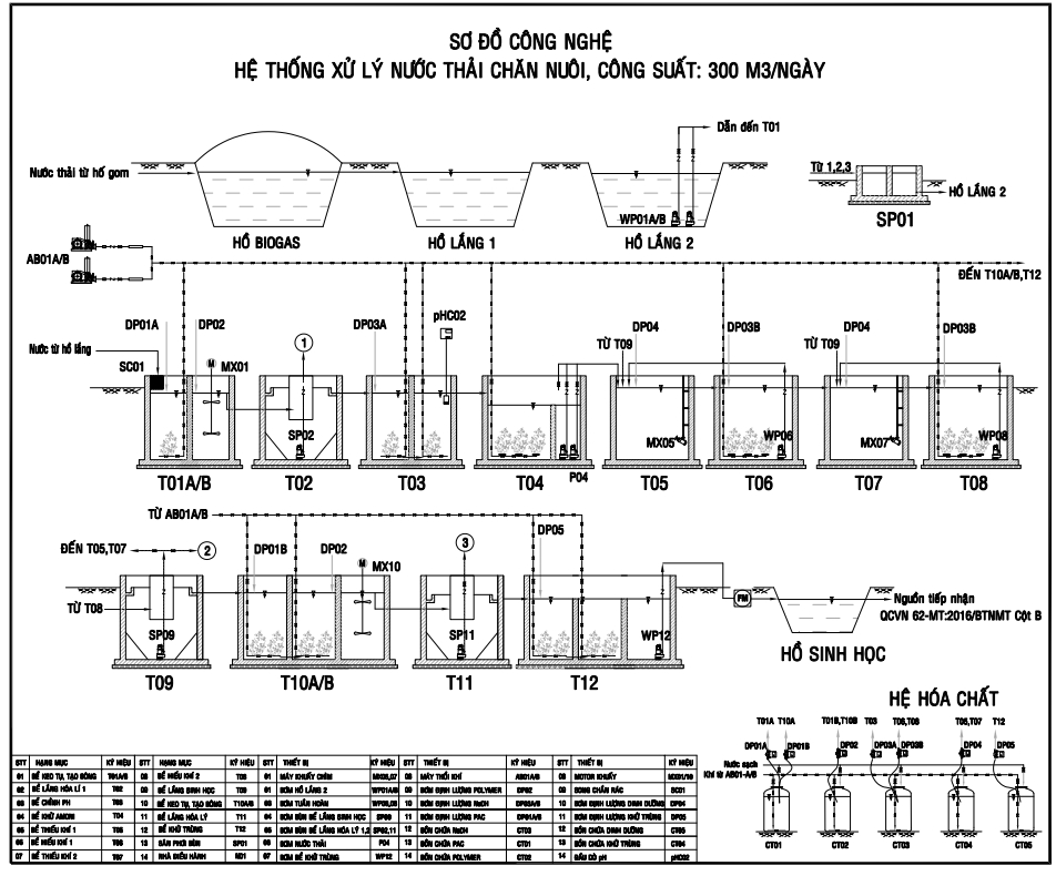
Công nghệ xử lý nước thải trại heo được các tập đoàn lớn áp dụng tại các trại khu vực Bình Phước vad các tỉnh Tây Nguyên.
Yêu cầu chất lượng nước sau xử lý:
Nước thải sau khi được xử lý tại Hệ thống xử lý nước thải của công ty cần đạt các giá trị nồng độ thành phần chất ô nhiễm theo Cột A của QCVN 62:2016/BTNMT – Quy chuẩn kỹ thuật quốc gia về nước thải chăn nuôi
Hiệu quả chi phí đầu tư và vận hành.
Các giai đoạn trong phương án xử lý
- Xử lý bậc 1
- Gom nước.
- Tách phân.
- Tách rác tinh.
- Điều hòa lưu lượng và nồng độ các thành phần ô nhiễm trong nước thải.
- Xử lý bậc 2
- Xử lý bậc 3
- Xử lý hóa lý, sử dụng các chất keo tụ tạo bông nhằm loại bỏ các chất ô nhiễm còn sót lại sau quá trình xử lý sinh học để đảm bảo chất lượng xả thải, khử trùng nước thải.
- Xử lý cặn và bùn phân tách
- Lọc cặn nước thải.
- Lắng đọng và xả thải bùn dư.
.png)
Hệ thống xử lý nước thải trại heo tai Farm Phú Hưng - Bình Định.
.png)
Khảo sát thi công hệ thống xử lý nước thải trại heo tai Farm Phú Hưng - Bình Định.

moitruongdongnambo.com là website trực thuộc Công ty TNHH GP&CN Môi Trường Việt chuyên tư vấn các giải pháp và công nghệ xử lý nước, xử lý môi trường, tư vấn luật môi trường, các giải pháp nhằm giảm thiểu chất thải bỏ ít gây ô nhiễm môi trường.
Cụ thể như sau:- Tư vấn, thi công hệ thống xử lý nước thải.
- Tư vấn, thi công hệ thống xử lý nước sạch, nước cấp, nước phục vị cho sản xuât, nước cấp lò hơi......
- Tư vấn, thi công hệ thống xử lý mùi, bụi, thông gió, khí thải từ các nhà máy...
- Tư vấn trọn gói các hồ sơ về môi trường, giấy phép môi trường theo đúng quy định năm 2022
- Tư vấn về an toàn lao động, đo kiễm môi trường, phân tích xét nghiệm mẫu .....
- Tư vấn về miễn thuế môi trương, thu gom, quản lý chất thải nguy hại......
Quý khách có nhu cầu tư vấn hay cần hỗ trợ hãy liên hệ 0973 923 688 Mr Việt Tel/Zalo
-
Xử lý nước thải cho hộ chăn nuôi heo quy mô nhỏ
- Ngày đăng: 05-08-2025
- Lượt xem: 273
Đối với chăn nuôi quy mô nhỏ từ 300 - 1500 can heo/lứa thì việc đầu tư hệ thống xử lý nước thải chăn nuôi heo hợp lý, với chi phí hợp lý và công nghệ dễ vận hành là điều quan trọng nhất.
Chi tiết -
Xử lý nước thải tại khu công nghiệp Tân Bình Bình Dương
- Ngày đăng: 11-06-2025
- Lượt xem: 762
Dịch vụ xử lý nước thải cho các công ty trong khu công nghiệp Tân Bình Bình Dương công ty chúng tôi hãy liên hệ 0973923688 để được tư vấn.
Chi tiết -
Lập hồ sơ đăng ký môi trường cho khách sạn Âu Lạc
- Ngày đăng: 11-06-2025
- Lượt xem: 438
Lập hồ sơ đăng ký môi trường cho khách sạn theo quy định của luật môi trường hiện hành là điều cần thiết. chúng tôi là đơn vị được khách sạn Au Lạc tin tưỡng ký hợp đồng thi công hệ thống xử lý nước thải và lập hồ sơ xin đăng ký môi trường với phường Võ Thị Sáu, quận 3
Chi tiết -
Cải tạo hệ thống xử lý nước thải cho bệnh viện Columbia Bình Dương
- Ngày đăng: 30-11-2024
- Lượt xem: 519
Hãy liên hệ chúng tôi ngay hôm nay để được tư vấn hoàn toàn miễn phí Dịch vụ hỗ trợ khách hàng cuả chúng tôi: Bảo hành từ 12- 18 tháng và bảo trì vĩnh viễn. Tư vấn, thiết kế, chọn giải pháp công nghệ miễn phí. Hỗ trợ vận hành canh chỉnh khi có đoàn kiễm tra
Chi tiết -
Xử lý mùi cho xưỡng in bao bì nhựa Long Vũ
- Ngày đăng: 30-11-2024
- Lượt xem: 350
Hãy liên hệ chúng tôi ngay hôm nay để được tư vấn hoàn toàn miễn phí Dịch vụ hỗ trợ khách hàng cuả chúng tôi: Bảo hành từ 12- 18 tháng và bảo trì vĩnh viễn. Tư vấn, thiết kế, chọn giải pháp công nghệ miễn phí. Hỗ trợ vận hành canh chỉnh khi có đoàn kiễm tra
Chi tiết
.png)

